Home » Floor Plans » Jemma








Highly energy efficient EPA Certified Energy Star homes, FPL Build Smart. Save tens of thousands of dollars for the life of the home. Substantially lower insurance premiums.
Healthy indoor environment. Free up to 99% of allergen, bacteria, mold, and viruses. EPA Indoor airPLUS certified.
Stay Safe. This home you can build with super insulated, steel reinforced, solid poured concrete ICF walls. Hurricane, tornado impact resistant up to 200 MPH, fire retardant up to 4 hours, sound suppressant.
Luxury living and fully customizable plans! Exclusive design and luxury interior features included in our standard specifications.
This home is built with sustainable construction technologies, that will keep your home competitive in the future housing market with newly built homes. Buying this Certified Green home, you are making the best investment for your family. Homes of the future at today’s pricing!
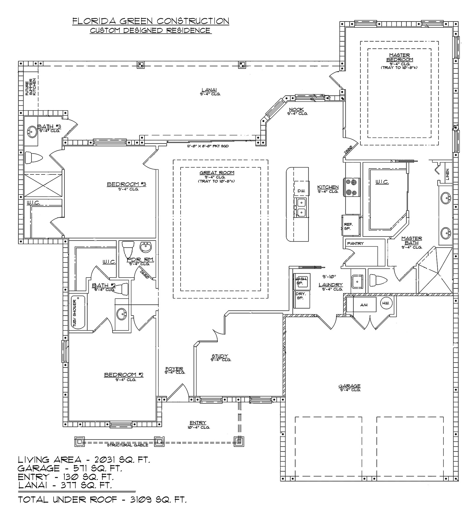
The Jemma floor plan is designed with modern living in mind, featuring three spacious bedrooms and two well-appointed bathrooms. This layout not only maximizes comfort but also enhances the functionality of the living space, making it ideal for families and individuals alike.
With a total living area of 2,041 square feet and an overall area of 3,109 square feet, the Jemma offers ample room for relaxation and entertainment. The thoughtful design includes a two-car garage, ensuring convenience for homeowners while maintaining a sleek exterior aesthetic.
One of the standout features of the Jemma floor plan is its commitment to energy efficiency, being certified as an EPA Energy Star home. This certification signifies that the home meets rigorous energy performance standards, which can lead to significant savings on utility bills.
Additionally, the use of sustainable construction technologies, such as super insulated, steel reinforced, solid poured concrete ICF walls, ensures that the home is not only energy-efficient but also resilient against harsh weather conditions, including hurricanes and tornadoes.
Florida Green Construction offers various customization options for the Jemma floor plan, allowing homeowners to tailor the space to their specific needs and preferences. Whether it's altering room sizes, choosing finishes, or adding features, the flexibility ensures that each home is unique.
Homeowners can work closely with the design team to select elements that reflect their personal style, ensuring that the Jemma floor plan not only meets their functional requirements but also feels like a true home.
If you have questions about the Jemma floor plan or wish to schedule a consultation, please reach out to us at 386-585-5976. Our team is ready to provide you with all the information you need to make an informed decision about your future home.
We encourage potential homeowners to take advantage of our expertise in energy-efficient and sustainable construction. Our business hours are Monday to Friday from 10 AM to 6 PM, and we are available by appointment on weekends to accommodate your schedule.
The Jemma floor plan is designed with modern living in mind, featuring three spacious bedrooms and two well-appointed bathrooms. This layout not only maximizes comfort but also enhances the functionality of the living space, making it ideal for families and individuals alike.
With a total living area of 2,041 square feet and an overall area of 3,109 square feet, the Jemma offers ample room for relaxation and entertainment. The thoughtful design includes a two-car garage, ensuring convenience for homeowners while maintaining a sleek exterior aesthetic.
One of the standout features of the Jemma floor plan is its commitment to energy efficiency, being certified as an EPA Energy Star home. This certification signifies that the home meets rigorous energy performance standards, which can lead to significant savings on utility bills.
Additionally, the use of sustainable construction technologies, such as super insulated, steel reinforced, solid poured concrete ICF walls, ensures that the home is not only energy-efficient but also resilient against harsh weather conditions, including hurricanes and tornadoes.
Florida Green Construction offers various customization options for the Jemma floor plan, allowing homeowners to tailor the space to their specific needs and preferences. Whether it's altering room sizes, choosing finishes, or adding features, the flexibility ensures that each home is unique.
Homeowners can work closely with the design team to select elements that reflect their personal style, ensuring that the Jemma floor plan not only meets their functional requirements but also feels like a true home.
If you have questions about the Jemma floor plan or wish to schedule a consultation, please reach out to us at 386-585-5976. Our team is ready to provide you with all the information you need to make an informed decision about your future home.
We encourage potential homeowners to take advantage of our expertise in energy-efficient and sustainable construction. Our business hours are Monday to Friday from 10 AM to 6 PM, and we are available by appointment on weekends to accommodate your schedule.