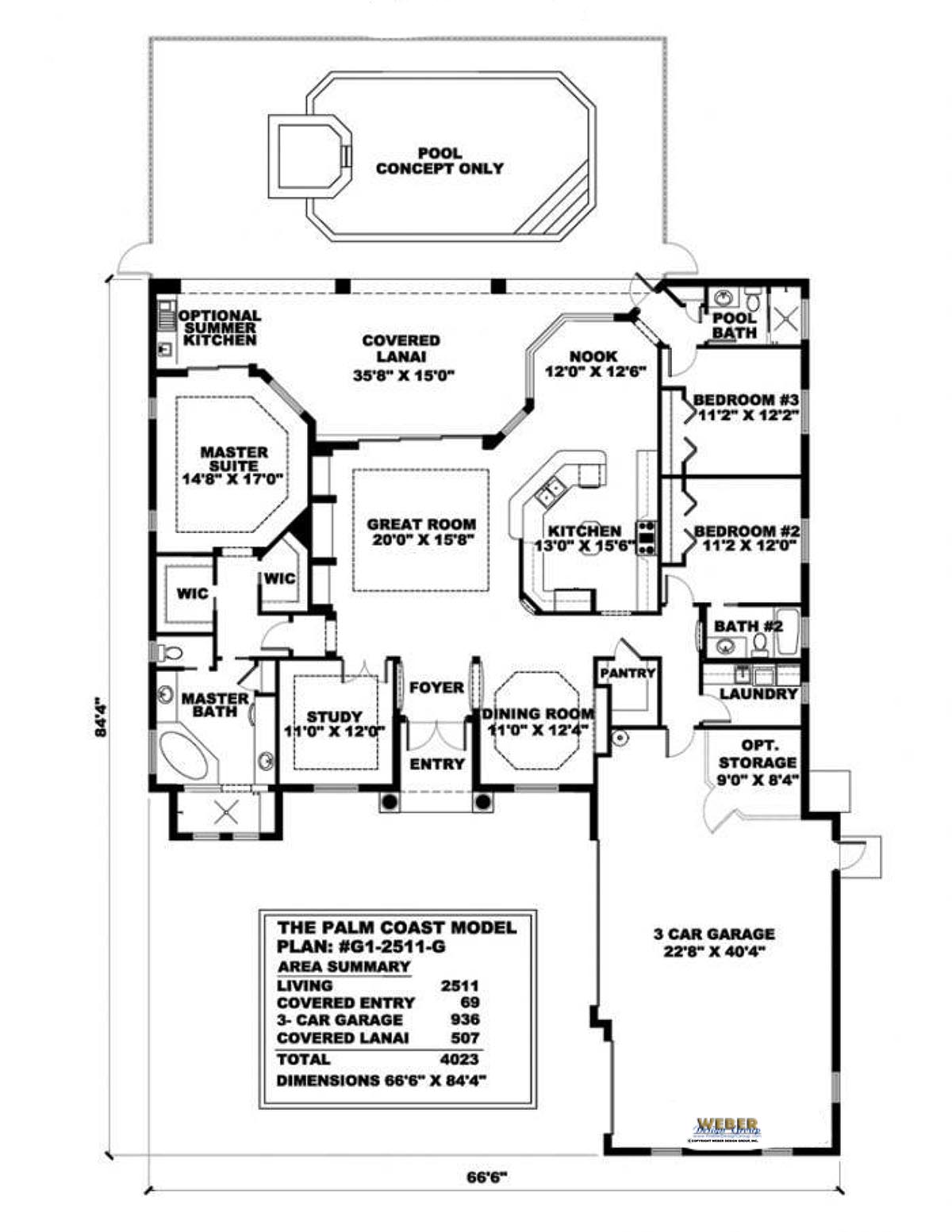
Home » Floor Plans » Palm Coast

Highly energy efficient EPA Certified Energy Star homes, FPL Build Smart. Save tens of thousands of dollars for the life of the home. Substantially lower insurance premiums.
Healthy indoor environment. Free up to 99% of allergen, bacteria, mold, and viruses. EPA Indoor airPLUS certified.
Stay Safe. This home you can build with super insulated, steel reinforced, solid poured concrete ICF walls. Hurricane, tornado impact resistant up to 200 MPH, fire retardant up to 4 hours, sound suppressant.
Luxury living and fully customizable plans! Exclusive design and luxury interior features included in our standard specifications.
This home is built with sustainable construction technologies, that will keep your home competitive in the future housing market with newly built homes. Buying this Certified Green home, you are making the best investment for your family. Homes of the future at today’s pricing!
palm coast home construction, palm coast construction, florida green construction, palm coast floor plans, green cars palm coast fl, energy efficient home plans florida, energy efficient home design florida
palm coast home construction, palm coast construction, florida green construction, palm coast floor plans, green cars palm coast fl, energy efficient home plans florida, energy efficient home design florida